◄ ZOEKPAGINA
alle BLAUWE tekst is aanklikbaar
klik hier voor PERMALINK in browserbalk
©
terug naar resultaten
van zoekopdracht
('t) Horntje
▼ KLIK voor alles over het trefwoord:
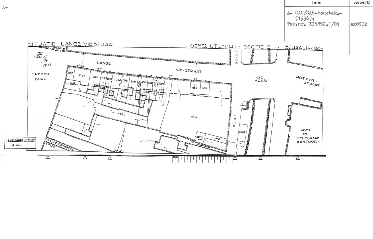
Utrecht - Lange Viestraat 2
pagina
17
van
20
Utrecht - Lange Viestraat 2
1936.0001a
'15:19 19-2-2008