HOME (Nieuwe
zoek
opdracht)
◄ ZOEKPAGINA
Alle BLAUWE tekst is aanklikbaar
klik hier voor PERMALINK in browserbalk
©
naar resultaten
van zoekopdracht
▼ KLIK voor alles over het trefwoord: trefwoord:
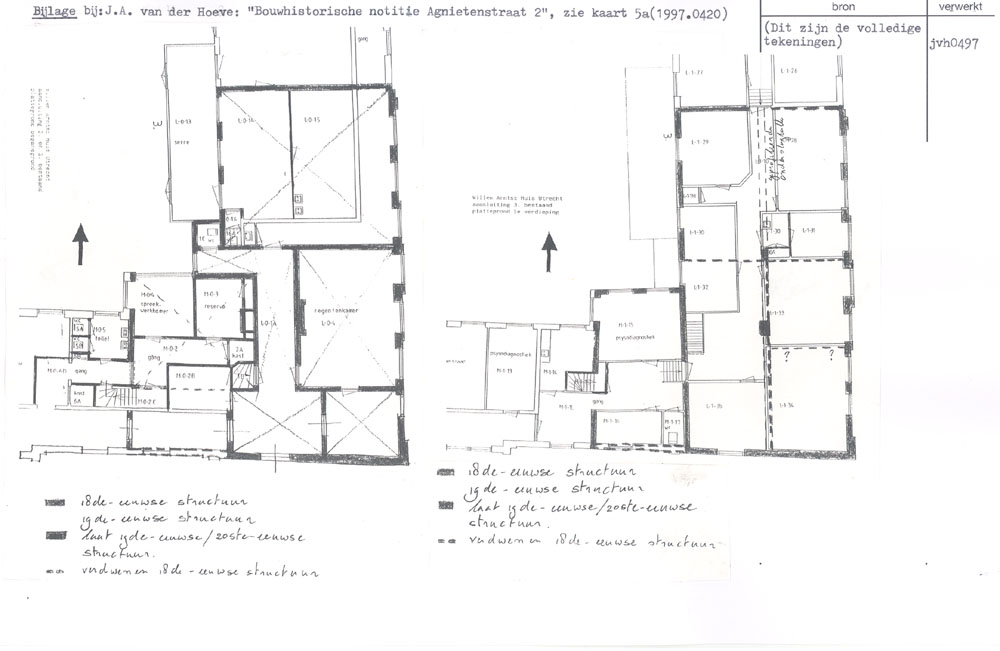
Utrecht - Agnietenstraat 2 - Willem Arntszhuis
Kaart 6
losse afbeeldingen
Utrecht - Agnietenstraat 2 - Willem Arntszhuis
1997.0420